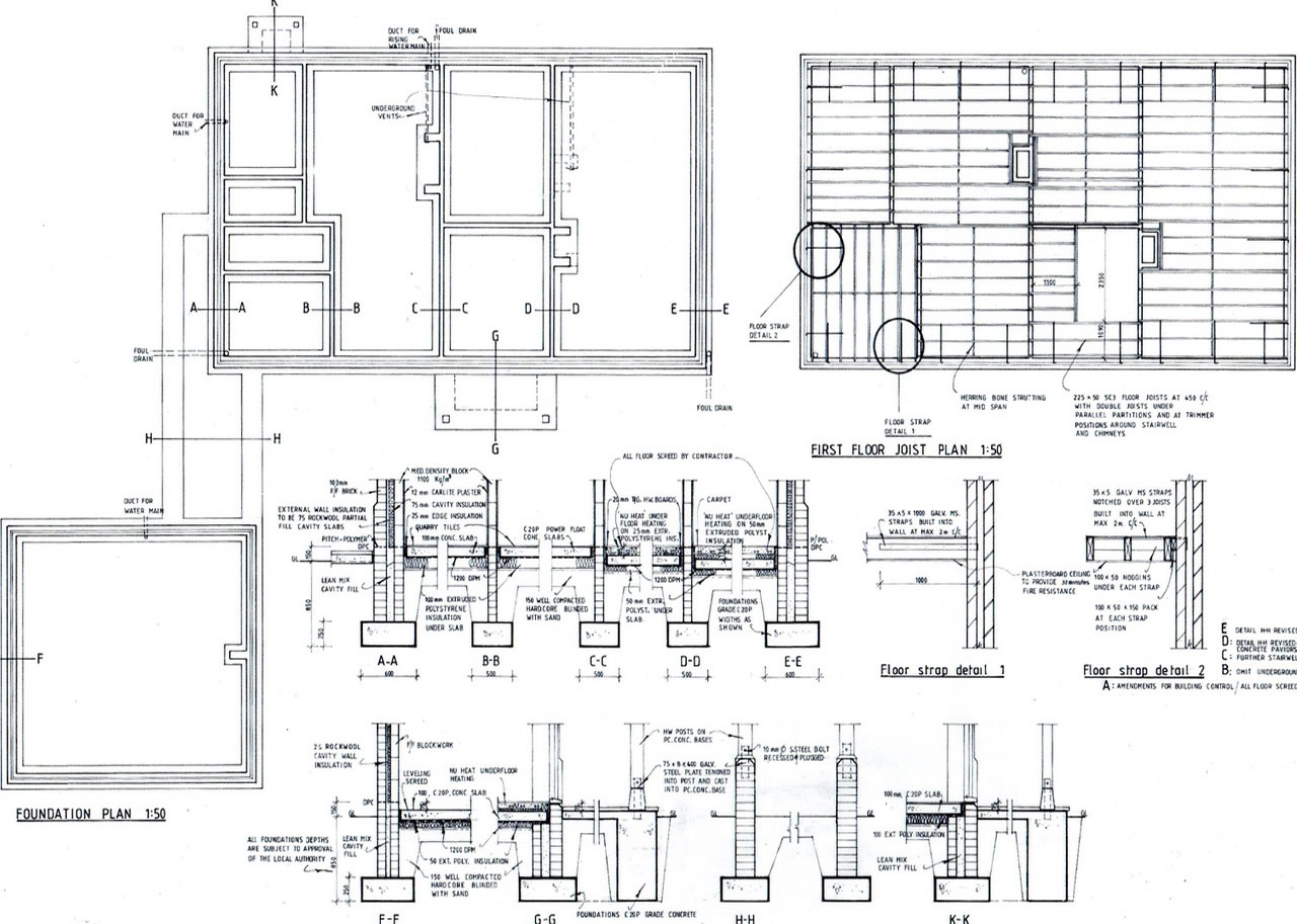
A new house for Mr and Mrs Roy Morgan, in the Vale of Clwyd near Ruthin, in farmland landscape, with distant views of the Clwydian range of mountains. Accommodation was to include four bedrooms and three bathrooms upstairs, with a loft above for storage. At ground floor level there was to be a large sitting room with an inglenook fireplace, a dining room opening on to the garden, a kitchen with breakfast area, a utility room, a cloakroom and a small office. A detached double garage with two doors was to accommodate a full width work bench at the rear.

1996.