Brynbella Hall, Tremeirchion, Denbighshire, an 18th century Mansion House and country estate, built in 1794 for Mrs. Hester Thrale-Piozzi in the neo-classical Palladian style by architect Clement Mead.
Hester Piozzi was the daughter of Sir John Salusbury and belonged to one of the most illustrious Welsh land owning dynasties of the Georgian era. She married Henry Thrale a rich London brewer with whom she had 12 children. Hester Thrale entered London society, meeting Dr. Samuel Johnson, James Boswell and other literary figures. Henry Thrale died in 1781 and in 1784 Hester married Gabriel Piozzi, her Italian music teacher and together they built Brynbella Hall as their family seat in north Wales.
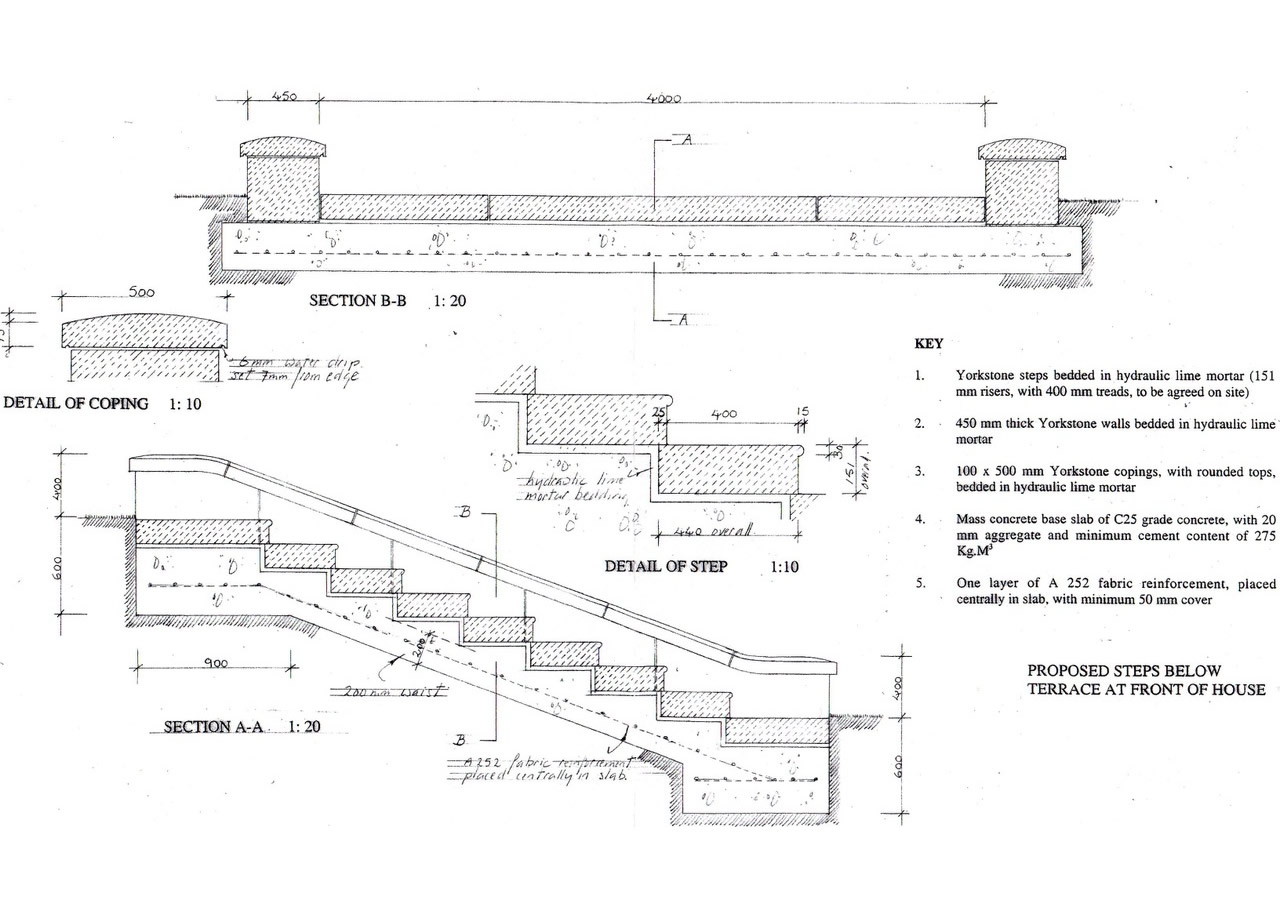
The present owners, Mr. and Mrs. Peter Neumark wished to make some internal alterations to the Kitchen and Television Room, renew pavings and balustrading along the south terrace and build a new east terrace with steps up and a new door to the Kitchen and steps down to the south terrace, linking landscaped levels around the east end of the house.
Repairs and alterations were also carried out to one of the estate Gate Lodges which involved dismantling and completely rebuilding the ashlar stone facade, overhauling slate and leadwork roof finishes, renewing external joinery items and extending the building at the rear.
With Arrol & Snell 2002.